- (Προς Πώληση) Κατοικία Οροφοδιαμέρισμα || Αθήνα Κέντρο/Δάφνη - 80 τ.μ, 2 Υ/Δ, 310.000€

Έτος Κατασκευής: 2025
Τ.μ. Οικοπέδου:
Θέα:
Κατάσταση: υπό κατασκευή
Parkings: 1
Θέρμανση: Ανεξάρτητη Θέρμανση
Επίπεδα:
Κοντά σε: Metro,Super Market,Αγορά,Εκκλησία,Πλατεία,Συγκοινωνίες,Σχολεία

Επιπλέον Χαρακτηριστικά

Αποθήκη Κλιματισμός Διαμπερές Προσόψεως Πόρτα Ασφαλείας Νεόδμητο Βεράντες Φωτεινό Πολυτελές Ασανσέρ Θυροτηλεόραση Επιτρέπονται Κατοικίδια Διπλά Τζάμια Σίτες Metro
 

Περιγραφή

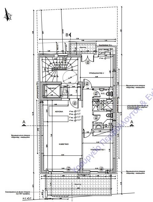
Προς Πώληση, Δάφνη, Άνω Δάφνη, Οροφοδιαμέρισμα, κατάσταση: Υπό Κατασκευή ,80 τ.μ ,1ος όροφος, Διαμπερές, 2 Υ/Δ, 1 μπάνιο/α, 1 WC, 1 parking, 2025 έτος κατασκευής, Χαρακτηριστικά: Ασανσέρ, Πόρτα Ασφαλείας, Θυροτηλεόραση, Αποθήκη, Διπλά Τζάμια, Σίτες, Βεράντες, Επιτρέπονται Κατοικίδια, Metro, Επενδυτικό, Πολυτελές, Διαμπερές, Προσόψεως, Φωτεινό, Κλιματισμός, Νεόδμητο, 60μ.από Μετρό,υπό κατασκευή(παράδοση 10ος-2026),οροφοδιαμέρισμα 80τμ,1ος,πάρκιν,αποθήκη,αντλία θερμότητας,wc,2υ/δ,πολυτελές, θέρμανση Ατομική - Αντλία Θερμότητας, κουφώματα Αλουμινίου, δάπεδα Πλακάκια , κοντά σε: Metro,Super Market,Αγορά,Εκκλησία,Πλατεία,Συγκοινωνίες,Σχολεία, τιμή: 310.000€. ΜΕΣΙΤΙΚΟ ΤΣΑΟΥΣΗΣ -  ΣΤΑΥΡΟΠΟΥΛΟΣ Ο.Ε., Καλλιρόης 41 Αθήνα- Φιξ, Τηλ: 2109224657, Κιν: 6932251952, e-mail: info@mesitiko-athens.gr

Αναλυτική Περιγραφή

πλησίον Μετρό Δάφνης (600μ.),υπό κατασκευή,(παράδοση 10ος του 2026),οροφοδιαμέρισμα,80τμ,1ος όροφος,διαμπερές,φωτεινό,μοντέρνα σχεδίαση,πάρκινγκ στην πιλωτή,μεγάλη αποθήκη στο υπόγειο,αυτόνομη θέρμανση με αντλία θερμότητας,κουφώματα αλουμινίου με διπλά τζάμια,σίτες,πατώματα πλακάκια,πόρτα ασφαλείας,ασανσέρ,βεράντα μπροστά και μπαλκόνι πίσω,διαθέτει 2 υπνοδωμάτια,ενιαία κουζίνα με σαλόνι,μπάνιο,WC,κοντά σε αγορά,σχολεία,πλατεία και συγκοινωνίες,ιδανικό για ιδιοκατοίκιση καιεπένδυση

Χάρτης

Σημεία Ενδιαφέροντος

Κοντά σε: Metro,Super Market,Αγορά,Εκκλησία,Πλατεία,Συγκοινωνίες,Σχολεία

Στατιστικά Ακινήτου

Δημοσίευση Ακινήτου: 04 Δεκ, 2025
Τελευταία ενημέρωση: 05 Μαρ, 2026
Με Ενδιαφέρει Socialize it Δάνειο Εκτύπωση
Με Ενδιαφέρει το ακίνητο
Συμπληρώστε την φόρμα και πατήστε αποστολή. Τα πεδία με * είναι υποχρεωτικά
*
*

Εισάγετε τον κωδικό
Υπολογισμός Δανείου
Συμπληρώστε το Επιτόκιο (χωρίς το σύμβολο %} και τη Διάρκεια αποπληρωμής σε έτη. Αν επιθυμείτε μπορείτε να αλλάξετε και το ποσό
(%)
(έτη)

Δείτε ακόμα

300.000€

Δάφνη (Δ. Δάφνης-Υμηττού), 80τ.μ.

Δείτε ακόμα

360.000€

Δάφνη (Δ. Δάφνης-Υμηττού), 80τ.μ.

Δείτε ακόμα

385.000€

Δάφνη (Δ. Δάφνης-Υμηττού), 80τ.μ.

Χαρακτηριστικά

Περιοχή Δάφνη (Δ. Δάφνης-Υμηττού)
Υποπεριοχή Άνω Δάφνη
Κατηγορία Κατοικίες
Τύπος Οροφοδιαμέρισμα
Τιμή 310.000€
Εμβαδόν (τ.μ.) 80
Τιμή/τ.μ. 3.875€
Υ/Δ 2
Μπάνια 1
Όροφος 1ος
ΠΕΑ A+
Κωδικός 47135
e-agentsID 1864413
Ενεργειακό Πιστοποιητικό
A+
Επικοινωνία


Λεωφόρος Καλλιρόης 41 & Ηρακλέους 1, Νέος Κόσμος 11743
210 9224657
693 6117773
info@mesitiko-athens.gr

Νόμισμα


Λεωφόρος Καλλιρόης 41 & Ηρακλέους 1, Νέος Κόσμος 11743
210 9224657
693 6117773
info@mesitiko-athens.gr

(Προς Πώληση) Κατοικία Οροφοδιαμέρισμα || Αθήνα Κέντρο/Δάφνη - 80 τ.μ, 2 Υ/Δ, 310.000€


Χαρακτηριστικά

Έτος Κατασκευής: 2025 Τ.μ. Οικοπέδου: Θέα: Κατάσταση: υπό κατασκευή Parkings: 1 Θέρμανση: Ανεξάρτητη Θέρμανση Επίπεδα: Κοντά σε: Metro,Super Market,Αγορά,Εκκλησία,Πλατεία,Συγκοινωνίες,Σχολεία
Περιοχή: Δάφνη (Δ. Δάφνης-Υμηττού) Υποπεριοχή: Άνω Δάφνη
Κατηγορία: Κατοικίες Τύπος: Οροφοδιαμέρισμα
Τιμή: 310.000€ Εμβαδόν (τ.μ.): 80
Τιμή/τ.μ. 3.875€ Υ/Δ: 2
Μπάνια: 1 Όροφος: 1ος
ΠΕΑ: A+ Κωδικός: 47135
e-agentsID: 1864413  

Επιπλέον Χαρακτηριστικά

Αποθήκη Κλιματισμός Διαμπερές Προσόψεως Πόρτα Ασφαλείας Νεόδμητο Βεράντες Φωτεινό Πολυτελές Ασανσέρ Θυροτηλεόραση Επιτρέπονται Κατοικίδια Διπλά Τζάμια Σίτες Metro
 

Περιγραφή

Προς Πώληση, Δάφνη, Άνω Δάφνη, Οροφοδιαμέρισμα, κατάσταση: Υπό Κατασκευή ,80 τ.μ ,1ος όροφος, Διαμπερές, 2 Υ/Δ, 1 μπάνιο/α, 1 WC, 1 parking, 2025 έτος κατασκευής, Χαρακτηριστικά: Ασανσέρ, Πόρτα Ασφαλείας, Θυροτηλεόραση, Αποθήκη, Διπλά Τζάμια, Σίτες, Βεράντες, Επιτρέπονται Κατοικίδια, Metro, Επενδυτικό, Πολυτελές, Διαμπερές, Προσόψεως, Φωτεινό, Κλιματισμός, Νεόδμητο, 60μ.από Μετρό,υπό κατασκευή(παράδοση 10ος-2026),οροφοδιαμέρισμα 80τμ,1ος,πάρκιν,αποθήκη,αντλία θερμότητας,wc,2υ/δ,πολυτελές, θέρμανση Ατομική - Αντλία Θερμότητας, κουφώματα Αλουμινίου, δάπεδα Πλακάκια , κοντά σε: Metro,Super Market,Αγορά,Εκκλησία,Πλατεία,Συγκοινωνίες,Σχολεία, τιμή: 310.000€. ΜΕΣΙΤΙΚΟ ΤΣΑΟΥΣΗΣ -  ΣΤΑΥΡΟΠΟΥΛΟΣ Ο.Ε., Καλλιρόης 41 Αθήνα- Φιξ, Τηλ: 2109224657, Κιν: 6932251952, e-mail: info@mesitiko-athens.gr

Στατιστικά Ακινήτου

Δημοσίευση Ακινήτου: 04 Δεκ, 2025
Τελευταία ενημέρωση: 05 Μαρ, 2026
Συνολικές επισκέψεις:

Loading...