- (Προς Πώληση) Κατοικία Οροφοδιαμέρισμα || Αθήνα Κέντρο/Δάφνη - 80 τ.μ, 2 Υ/Δ, 300.000€

Έτος Κατασκευής: 2025
Τ.μ. Οικοπέδου:
Θέα:
Κατάσταση: υπό κατασκευή
Parkings:
Θέρμανση: Ανεξάρτητη Θέρμανση
Επίπεδα:
Κοντά σε: Metro,Super Market,Αγορά,Εκκλησία,Πλατεία,Συγκοινωνίες,Σχολεία

Επιπλέον Χαρακτηριστικά

Αποθήκη Κλιματισμός Διαμπερές Προσόψεως Πόρτα Ασφαλείας Νεόδμητο Βεράντες Φωτεινό Πολυτελές Ασανσέρ Θυροτηλεόραση Επιτρέπονται Κατοικίδια Διπλά Τζάμια Σίτες Metro
 

Περιγραφή

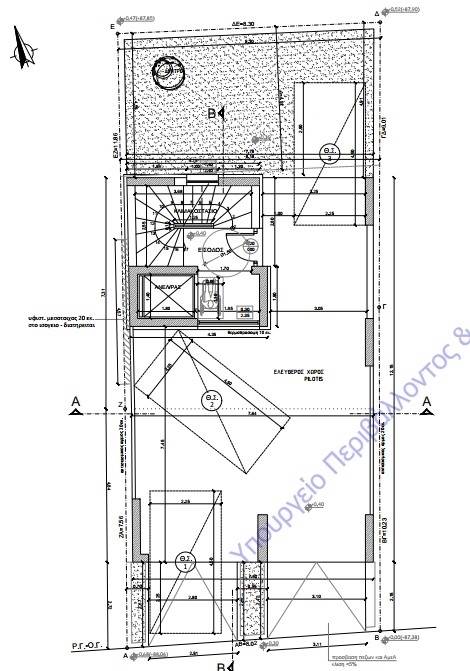
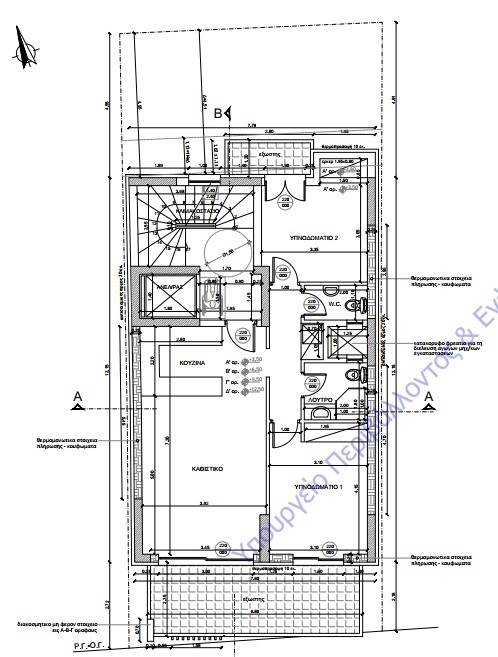
Προς Πώληση, Δάφνη, Άνω Δάφνη, Οροφοδιαμέρισμα, κατάσταση: Υπό Κατασκευή ,80 τ.μ ,2ος όροφος, Διαμπερές, 2 Υ/Δ, 1 μπάνιο/α, 1 WC, 2025 έτος κατασκευής, Χαρακτηριστικά: Ασανσέρ, Πόρτα Ασφαλείας, Θυροτηλεόραση, Αποθήκη, Διπλά Τζάμια, Σίτες, Βεράντες, Επιτρέπονται Κατοικίδια, Metro, Επενδυτικό, Πολυτελές, Διαμπερές, Προσόψεως, Φωτεινό, Κλιματισμός, Νεόδμητο, 60μ.από Μετρό,υπό κατασκευή(παράδοση 10ος-2026),οροφοδιαμέρισμα 80τμ,2ος,αποθήκη 17τμ,αντλία θερμότητας,wc,2υ/δ,πολυτελές, θέρμανση Ατομική - Αντλία Θερμότητας, κουφώματα Αλουμινίου, δάπεδα Πλακάκια , κοντά σε: Metro,Super Market,Αγορά,Εκκλησία,Πλατεία,Συγκοινωνίες,Σχολεία, τιμή: 300.000€. ΜΕΣΙΤΙΚΟ ΤΣΑΟΥΣΗΣ -  ΣΤΑΥΡΟΠΟΥΛΟΣ Ο.Ε., Καλλιρόης 41 Αθήνα- Φιξ, Τηλ: 2109224657, Κιν: 6932251952, e-mail: info@mesitiko-athens.gr

Αναλυτική Περιγραφή

πλησίον Μετρό Δάφνης (600μ.),υπό κατασκευή,(παράδοση 10ος του 2026),οροφοδιαμέρισμα,80τμ,2ος όροφος,διαμπερές,φωτεινό,μοντέρνα σχεδίαση,μεγάλη αποθήκη στο υπόγειο(17τμ),αυτόνομη θέρμανση με αντλία θερμότητας,κουφώματα αλουμινίου με διπλά τζάμια,σίτες,πατώματα πλακάκια,πόρτα ασφαλείας,ασανσέρ,βεράντα μπροστά και μπαλκόνι πίσω,διαθέτει 2 υπνοδωμάτια,ενιαία κουζίνα με σαλόνι,μπάνιο,WC,κοντά σε αγορά,σχολεία,πλατεία και συγκοινωνίες,ιδανικό για ιδιοκατοίκιση και επένδυση

Χάρτης

Σημεία Ενδιαφέροντος

Κοντά σε: Metro,Super Market,Αγορά,Εκκλησία,Πλατεία,Συγκοινωνίες,Σχολεία

Στατιστικά Ακινήτου

Δημοσίευση Ακινήτου: 04 Δεκ, 2025
Τελευταία ενημέρωση: 05 Μαρ, 2026
Με Ενδιαφέρει Socialize it Δάνειο Εκτύπωση
Με Ενδιαφέρει το ακίνητο
Συμπληρώστε την φόρμα και πατήστε αποστολή. Τα πεδία με * είναι υποχρεωτικά
*
*

Εισάγετε τον κωδικό
Υπολογισμός Δανείου
Συμπληρώστε το Επιτόκιο (χωρίς το σύμβολο %} και τη Διάρκεια αποπληρωμής σε έτη. Αν επιθυμείτε μπορείτε να αλλάξετε και το ποσό
(%)
(έτη)

Δείτε ακόμα

310.000€

Δάφνη (Δ. Δάφνης-Υμηττού), 80τ.μ.

Δείτε ακόμα

360.000€

Δάφνη (Δ. Δάφνης-Υμηττού), 80τ.μ.

Δείτε ακόμα

385.000€

Δάφνη (Δ. Δάφνης-Υμηττού), 80τ.μ.

Χαρακτηριστικά

Περιοχή Δάφνη (Δ. Δάφνης-Υμηττού)
Υποπεριοχή Άνω Δάφνη
Κατηγορία Κατοικίες
Τύπος Οροφοδιαμέρισμα
Τιμή 300.000€
Εμβαδόν (τ.μ.) 80
Τιμή/τ.μ. 3.750€
Υ/Δ 2
Μπάνια 1
Όροφος 2ος
ΠΕΑ A+
Κωδικός 47134
e-agentsID 1864412
Ενεργειακό Πιστοποιητικό
A+
Επικοινωνία


Λεωφόρος Καλλιρόης 41 & Ηρακλέους 1, Νέος Κόσμος 11743
210 9224657
693 6117773
info@mesitiko-athens.gr

Νόμισμα


Λεωφόρος Καλλιρόης 41 & Ηρακλέους 1, Νέος Κόσμος 11743
210 9224657
693 6117773
info@mesitiko-athens.gr

(Προς Πώληση) Κατοικία Οροφοδιαμέρισμα || Αθήνα Κέντρο/Δάφνη - 80 τ.μ, 2 Υ/Δ, 300.000€


Χαρακτηριστικά

Έτος Κατασκευής: 2025 Τ.μ. Οικοπέδου: Θέα: Κατάσταση: υπό κατασκευή Parkings: Θέρμανση: Ανεξάρτητη Θέρμανση Επίπεδα: Κοντά σε: Metro,Super Market,Αγορά,Εκκλησία,Πλατεία,Συγκοινωνίες,Σχολεία
Περιοχή: Δάφνη (Δ. Δάφνης-Υμηττού) Υποπεριοχή: Άνω Δάφνη
Κατηγορία: Κατοικίες Τύπος: Οροφοδιαμέρισμα
Τιμή: 300.000€ Εμβαδόν (τ.μ.): 80
Τιμή/τ.μ. 3.750€ Υ/Δ: 2
Μπάνια: 1 Όροφος: 2ος
ΠΕΑ: A+ Κωδικός: 47134
e-agentsID: 1864412  

Επιπλέον Χαρακτηριστικά

Αποθήκη Κλιματισμός Διαμπερές Προσόψεως Πόρτα Ασφαλείας Νεόδμητο Βεράντες Φωτεινό Πολυτελές Ασανσέρ Θυροτηλεόραση Επιτρέπονται Κατοικίδια Διπλά Τζάμια Σίτες Metro
 

Περιγραφή

Προς Πώληση, Δάφνη, Άνω Δάφνη, Οροφοδιαμέρισμα, κατάσταση: Υπό Κατασκευή ,80 τ.μ ,2ος όροφος, Διαμπερές, 2 Υ/Δ, 1 μπάνιο/α, 1 WC, 2025 έτος κατασκευής, Χαρακτηριστικά: Ασανσέρ, Πόρτα Ασφαλείας, Θυροτηλεόραση, Αποθήκη, Διπλά Τζάμια, Σίτες, Βεράντες, Επιτρέπονται Κατοικίδια, Metro, Επενδυτικό, Πολυτελές, Διαμπερές, Προσόψεως, Φωτεινό, Κλιματισμός, Νεόδμητο, 60μ.από Μετρό,υπό κατασκευή(παράδοση 10ος-2026),οροφοδιαμέρισμα 80τμ,2ος,αποθήκη 17τμ,αντλία θερμότητας,wc,2υ/δ,πολυτελές, θέρμανση Ατομική - Αντλία Θερμότητας, κουφώματα Αλουμινίου, δάπεδα Πλακάκια , κοντά σε: Metro,Super Market,Αγορά,Εκκλησία,Πλατεία,Συγκοινωνίες,Σχολεία, τιμή: 300.000€. ΜΕΣΙΤΙΚΟ ΤΣΑΟΥΣΗΣ -  ΣΤΑΥΡΟΠΟΥΛΟΣ Ο.Ε., Καλλιρόης 41 Αθήνα- Φιξ, Τηλ: 2109224657, Κιν: 6932251952, e-mail: info@mesitiko-athens.gr

Στατιστικά Ακινήτου

Δημοσίευση Ακινήτου: 04 Δεκ, 2025
Τελευταία ενημέρωση: 05 Μαρ, 2026
Συνολικές επισκέψεις:

Loading...