- (Προς Πώληση) Αξιοποιήσιμη Γη Οικόπεδο || Ανατολική Αττική/Ραφήνα - 552 τ.μ, 830.000€

Έτος Κατασκευής:
Σ.Δ.: 0,8
Σ.Κ.: 70
Χρήση Γης: Γενική κατοικία
Σχέδιο Πόλεως: Εντός σχεδίου
Κοντά σε: Θάλασσα,Αγορά,Εκκλησία,Σχολεία,Συγκοινωνίες,Λιμάνι

Επιπλέον Χαρακτηριστικά

Προσόψεως Οικοδομήσιμο Με άδεια οικοδομής Επίπεδο Περιφραγμένο
 

Περιγραφή

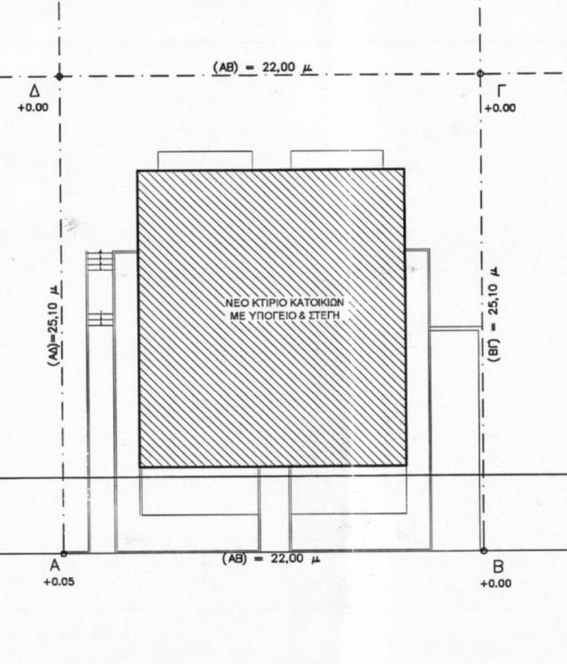
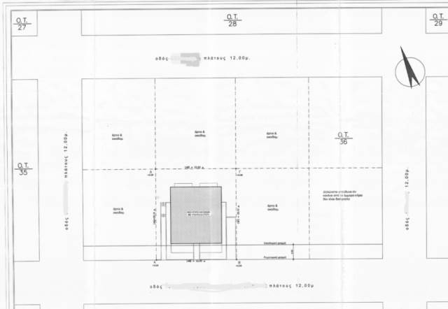
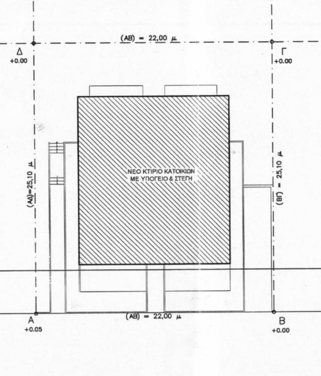
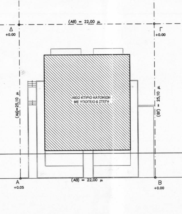
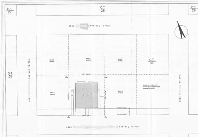
Προς Πώληση, Ραφήνα, Κέντρο, Οικόπεδο, 552 τ.μ, Προσόψεως, χαρακτηριστικα: Οικοδομήσιμο, Με άδεια οικοδομής, Περιφραγμένο, Επενδυτικό, Προσόψεως, Επίπεδο, 200μ. από Θάλασσα,οικόπεδο 552,20τμ με διαστάσεις 22 Χ 25,10, εντός σχεδίου,με 0,8 Σ.Δ.(χτίζει 442τμ),με 70% κάλυψη και 8μ. ανώτερο ύψος, Σ.Δ: 0,8,  Σ.Κ: 70 Εντός σχεδίου Γενική κατοικία, Α.Ο.Τ: 36, κοντά σε: Θάλασσα,Αγορά,Εκκλησία,Σχολεία,Συγκοινωνίες,Λιμάνι, τιμή: 830.000€. ΜΕΣΙΤΙΚΟ ΤΣΑΟΥΣΗΣ -  ΣΤΑΥΡΟΠΟΥΛΟΣ Ο.Ε., Καλλιρόης 41 Αθήνα- Φιξ, Τηλ: 2109224657, e-mail: info@mesitiko-athens.gr

Αναλυτική Περιγραφή

200μ. από Θάλασσα,σε καταπληκτικό σημείο,οικόπεδο 552,20τ.μ. με διαστάσεις 22 πρόσοψη Χ 25,10 βάθος, εντός σχεδίου,με 0,8 Συντελεστή Δόμησης(χτίζει 442τμ),με 70% κάλυψη οικοπέδου και 8μ. ανώτερο ύψος

Χάρτης

Σημεία Ενδιαφέροντος

Κοντά σε: Θάλασσα,Αγορά,Εκκλησία,Σχολεία,Συγκοινωνίες,Λιμάνι

Στατιστικά Ακινήτου

Δημοσίευση Ακινήτου: 04 Μαρ, 2026
Τελευταία ενημέρωση: 17 Απρ, 2026
Με Ενδιαφέρει Socialize it Δάνειο Εκτύπωση
Με Ενδιαφέρει το ακίνητο
Συμπληρώστε την φόρμα και πατήστε αποστολή. Τα πεδία με * είναι υποχρεωτικά
*
*

Εισάγετε τον κωδικό
Υπολογισμός Δανείου
Συμπληρώστε το Επιτόκιο (χωρίς το σύμβολο %} και τη Διάρκεια αποπληρωμής σε έτη. Αν επιθυμείτε μπορείτε να αλλάξετε και το ποσό
(%)
(έτη)

Χαρακτηριστικά

Περιοχή Ραφήνα (Δ. Ραφήνας-Πικερμίου)
Υποπεριοχή Κέντρο
Κατηγορία Αξιοποιήσημη Γη
Τύπος Οικόπεδο
Τιμή 830.000€
Εμβαδόν (τ.μ.) 552,2
Τιμή/τ.μ. 1.503€
ΠΕΑ
Κωδικός 47274
e-agentsID 1881037
Επικοινωνία


Λεωφόρος Καλλιρόης 41 & Ηρακλέους 1, Νέος Κόσμος 11743
210 9224657
693 6117773
info@mesitiko-athens.gr

Νόμισμα


Λεωφόρος Καλλιρόης 41 & Ηρακλέους 1, Νέος Κόσμος 11743
210 9224657
693 6117773
info@mesitiko-athens.gr

(Προς Πώληση) Αξιοποιήσιμη Γη Οικόπεδο || Ανατολική Αττική/Ραφήνα - 552 τ.μ, 830.000€


Χαρακτηριστικά

Έτος Κατασκευής: Σ.Δ.: 0,8 Σ.Κ.: 70 Χρήση Γης: Γενική κατοικία Σχέδιο Πόλεως: Εντός σχεδίου Κοντά σε: Θάλασσα,Αγορά,Εκκλησία,Σχολεία,Συγκοινωνίες,Λιμάνι
Περιοχή: Ραφήνα (Δ. Ραφήνας-Πικερμίου) Υποπεριοχή: Κέντρο
Κατηγορία: Αξιοποιήσημη Γη Τύπος: Οικόπεδο
Τιμή: 830.000€ Εμβαδόν (τ.μ.): 552,2
Τιμή/τ.μ. 1.503€ Υ/Δ:
Μπάνια: Όροφος:
ΠΕΑ: Κωδικός: 47274
e-agentsID: 1881037  

Επιπλέον Χαρακτηριστικά

Προσόψεως Οικοδομήσιμο Με άδεια οικοδομής Επίπεδο Περιφραγμένο
 

Περιγραφή

Προς Πώληση, Ραφήνα, Κέντρο, Οικόπεδο, 552 τ.μ, Προσόψεως, χαρακτηριστικα: Οικοδομήσιμο, Με άδεια οικοδομής, Περιφραγμένο, Επενδυτικό, Προσόψεως, Επίπεδο, 200μ. από Θάλασσα,οικόπεδο 552,20τμ με διαστάσεις 22 Χ 25,10, εντός σχεδίου,με 0,8 Σ.Δ.(χτίζει 442τμ),με 70% κάλυψη και 8μ. ανώτερο ύψος, Σ.Δ: 0,8,  Σ.Κ: 70 Εντός σχεδίου Γενική κατοικία, Α.Ο.Τ: 36, κοντά σε: Θάλασσα,Αγορά,Εκκλησία,Σχολεία,Συγκοινωνίες,Λιμάνι, τιμή: 830.000€. ΜΕΣΙΤΙΚΟ ΤΣΑΟΥΣΗΣ -  ΣΤΑΥΡΟΠΟΥΛΟΣ Ο.Ε., Καλλιρόης 41 Αθήνα- Φιξ, Τηλ: 2109224657, e-mail: info@mesitiko-athens.gr

Στατιστικά Ακινήτου

Δημοσίευση Ακινήτου: 04 Μαρ, 2026
Τελευταία ενημέρωση: 17 Απρ, 2026
Συνολικές επισκέψεις:

Loading...