- (Προς Πώληση) Κατοικία Διαμέρισμα || Αθήνα Δυτικά/Περιστέρι - 87 τ.μ, 2 Υ/Δ, 280.000€

Έτος Κατασκευής: 2025
Τ.μ. Οικοπέδου:
Θέα: Καλή
Κατάσταση: Καταπληκτική
Parkings: 1
Θέρμανση: Ανεξάρτητη Θέρμανση
Επίπεδα:
Κοντά σε: Metro,Super Market,Αγορά,Εκκλησία,Πλατεία,Σχολεία,Συγκοινωνίες

Επιπλέον Χαρακτηριστικά

Αποθήκη Κλιματισμός Διαμπερές Προσόψεως Πόρτα Ασφαλείας Νεόδμητο Συναγερμός Βεράντες Φωτεινό Βαμμένο Για Φοιτητές Πολυτελές Ασανσέρ Θυροτηλεόραση Επιτρέπονται Κατοικίδια Διπλά Τζάμια Boiler Metro
 

Περιγραφή

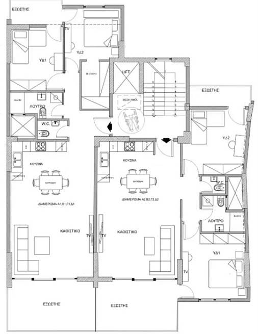
Προς Πώληση, Περιστέρι, Μπουρνάζι, Διαμέρισμα, κατάσταση: Καταπληκτική ,87 τ.μ ,3ος όροφος, Διαμπερές, 2 Υ/Δ, 1 μπάνιο/α, 1 WC, 1 parking, 2025 έτος κατασκευής, Χαρακτηριστικά: Ασανσέρ, Πόρτα Ασφαλείας, Συναγερμός, Θυροτηλεόραση, Αποθήκη, Διπλά Τζάμια, Βεράντες, Επιτρέπονται Κατοικίδια, Metro, Επενδυτικό, Πολυτελές, Διαμπερές, Προσόψεως, Φωτεινό, Κλιματισμός, Boiler, Νεόδμητο, Βαμμένο, Για Φοιτητές, 450μ. από Μετρό και Πλ. Μπουρναζίου,νεόδμητο διαμέρισμα 87τμ,3ου,διαμπερές,κατασκευής 2025,πάρκινγκ,αποθήκη,θέα,αντλία θερμότητας,wc,θερμοπρόσοψη, θέρμανση Ατομική - Αντλία Θερμότητας, κουφώματα Αλουμινίου, δάπεδα Πλακάκια, θέα :Καλή , κοντά σε: Metro,Super Market,Αγορά,Εκκλησία,Πλατεία,Σχολεία,Συγκοινωνίες, τιμή: 280.000€. ΜΕΣΙΤΙΚΟ ΤΣΑΟΥΣΗΣ -  ΣΤΑΥΡΟΠΟΥΛΟΣ Ο.Ε., Καλλιρόης 41 Αθήνα- Φιξ, Τηλ: 2109224657, Κιν: 6932251952, e-mail: info@mesitiko-athens.gr

Αναλυτική Περιγραφή

450μ. από Μετρό και Πλ. Μπουρναζίου,νεόδμητο διαμέρισμα 87τμ,3ου ορόφου,διαμπερές,κατασκευής 2025,πάρκινγκ,υπόγεια αποθήκη μεγάλου χώρου,θέα,ενεργειακής κλάσης Α+,μόνωση με θερμοπροσοψη 10εκ., θερμοδιακοπτόμενα κουφώματα αλουμινίου,πόρτα ασφαλέιας,ατομική θέρμανση με αντλία θερμότητας,κλιματισμός,ηλιακός,φωτοβολταϊκά πάνελ,μεγάλες βεράντες μπρος και πίσω,δάπεδα πλακάκια,αποτελείται από κουζίνα με σαλόνι,λουτρό,wc, και 2 υπνοδωμάτια,σε μια από τις καλύτερες γειτονιές στο κέντρο του Περιστερίου, δίπλα σε μετρό,πεζόδρομο,πλατείες δημαρχείου και Μπουρνάζιου,άμεσα προσβάσιμο στα ΜΜΜ και σε σχολεία,αγορά και σούπερ μάρκετ

Χάρτης

Σημεία Ενδιαφέροντος

Κοντά σε: Metro,Super Market,Αγορά,Εκκλησία,Πλατεία,Σχολεία,Συγκοινωνίες

Στατιστικά Ακινήτου

Δημοσίευση Ακινήτου: 03 Οκτ, 2025
Τελευταία ενημέρωση: 03 Οκτ, 2025
Με Ενδιαφέρει Socialize it Δάνειο Εκτύπωση
Με Ενδιαφέρει το ακίνητο
Συμπληρώστε την φόρμα και πατήστε αποστολή. Τα πεδία με * είναι υποχρεωτικά
*
*

Εισάγετε τον κωδικό
Υπολογισμός Δανείου
Συμπληρώστε το Επιτόκιο (χωρίς το σύμβολο %} και τη Διάρκεια αποπληρωμής σε έτη. Αν επιθυμείτε μπορείτε να αλλάξετε και το ποσό
(%)
(έτη)

Δείτε ακόμα

260.000€

Περιστέρι (Δ. Περιστερίου), 87τ.μ.

Δείτε ακόμα

270.000€

Περιστέρι (Δ. Περιστερίου), 87τ.μ.

Χαρακτηριστικά

Περιοχή Περιστέρι (Δ. Περιστερίου)
Υποπεριοχή Μπουρνάζι
Κατηγορία Κατοικίες
Τύπος Διαμέρισμα
Τιμή 280.000€
Εμβαδόν (τ.μ.) 87
Τιμή/τ.μ. 3.218€
Υ/Δ 2
Μπάνια 1
Όροφος 3ος
ΠΕΑ A+
Κωδικός 47017
e-agentsID 1851228
Ενεργειακό Πιστοποιητικό
A+
Επικοινωνία


Λεωφόρος Καλλιρόης 41 & Ηρακλέους 1, Νέος Κόσμος 11743
210 9224657
693 6117773
info@mesitiko-athens.gr

Νόμισμα


Λεωφόρος Καλλιρόης 41 & Ηρακλέους 1, Νέος Κόσμος 11743
210 9224657
693 6117773
info@mesitiko-athens.gr

(Προς Πώληση) Κατοικία Διαμέρισμα || Αθήνα Δυτικά/Περιστέρι - 87 τ.μ, 2 Υ/Δ, 280.000€


Χαρακτηριστικά

Έτος Κατασκευής: 2025 Τ.μ. Οικοπέδου: Θέα: Καλή Κατάσταση: Καταπληκτική Parkings: 1 Θέρμανση: Ανεξάρτητη Θέρμανση Επίπεδα: Κοντά σε: Metro,Super Market,Αγορά,Εκκλησία,Πλατεία,Σχολεία,Συγκοινωνίες
Περιοχή: Περιστέρι (Δ. Περιστερίου) Υποπεριοχή: Μπουρνάζι
Κατηγορία: Κατοικίες Τύπος: Διαμέρισμα
Τιμή: 280.000€ Εμβαδόν (τ.μ.): 87
Τιμή/τ.μ. 3.218€ Υ/Δ: 2
Μπάνια: 1 Όροφος: 3ος
ΠΕΑ: A+ Κωδικός: 47017
e-agentsID: 1851228  

Επιπλέον Χαρακτηριστικά

Αποθήκη Κλιματισμός Διαμπερές Προσόψεως Πόρτα Ασφαλείας Νεόδμητο Συναγερμός Βεράντες Φωτεινό Βαμμένο Για Φοιτητές Πολυτελές Ασανσέρ Θυροτηλεόραση Επιτρέπονται Κατοικίδια Διπλά Τζάμια Boiler Metro
 

Περιγραφή

Προς Πώληση, Περιστέρι, Μπουρνάζι, Διαμέρισμα, κατάσταση: Καταπληκτική ,87 τ.μ ,3ος όροφος, Διαμπερές, 2 Υ/Δ, 1 μπάνιο/α, 1 WC, 1 parking, 2025 έτος κατασκευής, Χαρακτηριστικά: Ασανσέρ, Πόρτα Ασφαλείας, Συναγερμός, Θυροτηλεόραση, Αποθήκη, Διπλά Τζάμια, Βεράντες, Επιτρέπονται Κατοικίδια, Metro, Επενδυτικό, Πολυτελές, Διαμπερές, Προσόψεως, Φωτεινό, Κλιματισμός, Boiler, Νεόδμητο, Βαμμένο, Για Φοιτητές, 450μ. από Μετρό και Πλ. Μπουρναζίου,νεόδμητο διαμέρισμα 87τμ,3ου,διαμπερές,κατασκευής 2025,πάρκινγκ,αποθήκη,θέα,αντλία θερμότητας,wc,θερμοπρόσοψη, θέρμανση Ατομική - Αντλία Θερμότητας, κουφώματα Αλουμινίου, δάπεδα Πλακάκια, θέα :Καλή , κοντά σε: Metro,Super Market,Αγορά,Εκκλησία,Πλατεία,Σχολεία,Συγκοινωνίες, τιμή: 280.000€. ΜΕΣΙΤΙΚΟ ΤΣΑΟΥΣΗΣ -  ΣΤΑΥΡΟΠΟΥΛΟΣ Ο.Ε., Καλλιρόης 41 Αθήνα- Φιξ, Τηλ: 2109224657, Κιν: 6932251952, e-mail: info@mesitiko-athens.gr

Στατιστικά Ακινήτου

Δημοσίευση Ακινήτου: 03 Οκτ, 2025
Τελευταία ενημέρωση: 03 Οκτ, 2025
Συνολικές επισκέψεις:

Loading...