- (Προς Πώληση) Αξιοποιήσιμη Γη Οικόπεδο || Αθήνα Βόρεια/Αγία Παρασκευή - 265 τ.μ, 250.000€

Έτος Κατασκευής:
Σ.Δ.: 0,8
Σ.Κ.: 60
Χρήση Γης:
Σχέδιο Πόλεως: Εντός σχεδίου
Κοντά σε: Metro-Προαστιακός,Σχολεία,Συγκοινωνίες,Super Market,Εκκλησία

Επιπλέον Χαρακτηριστικά

Προσόψεως Οικοδομήσιμο Επίπεδο Metro
 

Περιγραφή

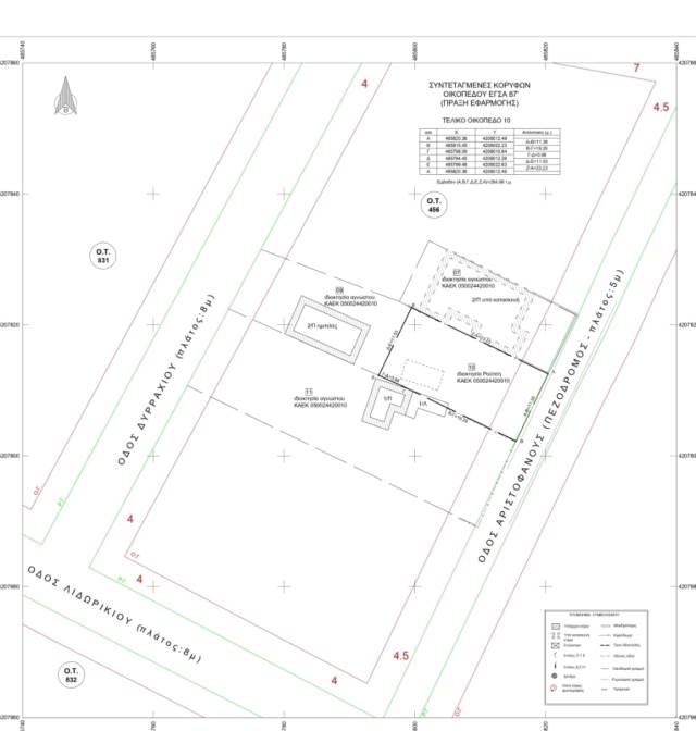
Προς Πώληση, Αγία Παρασκευή, Πευκάκια, Οικόπεδο, 265 τ.μ, προσόψεως, χαρακτηριστικα: Οικοδομήσιμο, Metro, Επενδυτικό, Προσόψεως, Επίπεδο, 600μ. από Μετρό Δουκκίσης Πλακεντίας,στην οδό Αριστοφάνους,οικόπεδο 265τμ,με 0,8 Σ.Δ., και 60% κάλυψη,με 11μ. επιτρεπόμενο ύψος συν 2μ. η στέγη, Σ.Δ: 0,8,  Σ.Κ: 60 Εντός σχεδίου , κοντά σε: Metro-Προαστιακός,Σχολεία,Συγκοινωνίες,Super Market,Εκκλησία, τιμή: 250.000€. ΜΕΣΙΤΙΚΟ ΤΣΑΟΥΣΗΣ -  ΣΤΑΥΡΟΠΟΥΛΟΣ Ο.Ε., Καλλιρόης 41 Αθήνα- Φιξ, Τηλ: 2109224657, e-mail: info@mesitiko-athens.gr

Αναλυτική Περιγραφή

600μ. από Μετρό Δουκκίσης Πλακεντίας,στην οδό Αριστοφάνους,οικόπεδο 265τμ,εντός σχεδίου,με 0,8 Συντελεστή Δόμησης, και 60% κάλυψη οικοπέδου,με 11μ. επιτρεπόμενο ύψος συν 2μ. η στέγη, με διαστάσεις οικοπέδου 12μ. πρόσοψη και 22μ. βάθος

Χάρτης

Σημεία Ενδιαφέροντος

Κοντά σε: Metro-Προαστιακός,Σχολεία,Συγκοινωνίες,Super Market,Εκκλησία

Στατιστικά Ακινήτου

Δημοσίευση Ακινήτου: 15 Μαρ, 2023
Τελευταία ενημέρωση: 05 Μαρ, 2026
Με Ενδιαφέρει Socialize it Δάνειο Εκτύπωση
Με Ενδιαφέρει το ακίνητο
Συμπληρώστε την φόρμα και πατήστε αποστολή. Τα πεδία με * είναι υποχρεωτικά
*
*

Εισάγετε τον κωδικό
Υπολογισμός Δανείου
Συμπληρώστε το Επιτόκιο (χωρίς το σύμβολο %} και τη Διάρκεια αποπληρωμής σε έτη. Αν επιθυμείτε μπορείτε να αλλάξετε και το ποσό
(%)
(έτη)

Χαρακτηριστικά

Περιοχή Αγία Παρασκευή (Δ. Αγ. Παρασκευής)
Υποπεριοχή Πευκάκια
Κατηγορία Αξιοποιήσημη Γη
Τύπος Οικόπεδο
Τιμή 250.000€
Εμβαδόν (τ.μ.) 265
Τιμή/τ.μ. 943€
ΠΕΑ
Κωδικός 33337
e-agentsID 1524450
Επικοινωνία


Λεωφόρος Καλλιρόης 41 & Ηρακλέους 1, Νέος Κόσμος 11743
210 9224657
693 6117773
info@mesitiko-athens.gr

Νόμισμα


Λεωφόρος Καλλιρόης 41 & Ηρακλέους 1, Νέος Κόσμος 11743
210 9224657
693 6117773
info@mesitiko-athens.gr

(Προς Πώληση) Αξιοποιήσιμη Γη Οικόπεδο || Αθήνα Βόρεια/Αγία Παρασκευή - 265 τ.μ, 250.000€


Χαρακτηριστικά

Έτος Κατασκευής: Σ.Δ.: 0,8 Σ.Κ.: 60 Χρήση Γης: Σχέδιο Πόλεως: Εντός σχεδίου Κοντά σε: Metro-Προαστιακός,Σχολεία,Συγκοινωνίες,Super Market,Εκκλησία
Περιοχή: Αγία Παρασκευή (Δ. Αγ. Παρασκευής) Υποπεριοχή: Πευκάκια
Κατηγορία: Αξιοποιήσημη Γη Τύπος: Οικόπεδο
Τιμή: 250.000€ Εμβαδόν (τ.μ.): 265
Τιμή/τ.μ. 943€ Υ/Δ:
Μπάνια: Όροφος:
ΠΕΑ: Κωδικός: 33337
e-agentsID: 1524450  

Επιπλέον Χαρακτηριστικά

Προσόψεως Οικοδομήσιμο Επίπεδο Metro
 

Περιγραφή

Προς Πώληση, Αγία Παρασκευή, Πευκάκια, Οικόπεδο, 265 τ.μ, προσόψεως, χαρακτηριστικα: Οικοδομήσιμο, Metro, Επενδυτικό, Προσόψεως, Επίπεδο, 600μ. από Μετρό Δουκκίσης Πλακεντίας,στην οδό Αριστοφάνους,οικόπεδο 265τμ,με 0,8 Σ.Δ., και 60% κάλυψη,με 11μ. επιτρεπόμενο ύψος συν 2μ. η στέγη, Σ.Δ: 0,8,  Σ.Κ: 60 Εντός σχεδίου , κοντά σε: Metro-Προαστιακός,Σχολεία,Συγκοινωνίες,Super Market,Εκκλησία, τιμή: 250.000€. ΜΕΣΙΤΙΚΟ ΤΣΑΟΥΣΗΣ -  ΣΤΑΥΡΟΠΟΥΛΟΣ Ο.Ε., Καλλιρόης 41 Αθήνα- Φιξ, Τηλ: 2109224657, e-mail: info@mesitiko-athens.gr

Στατιστικά Ακινήτου

Δημοσίευση Ακινήτου: 15 Μαρ, 2023
Τελευταία ενημέρωση: 05 Μαρ, 2026
Συνολικές επισκέψεις:

Loading...